test
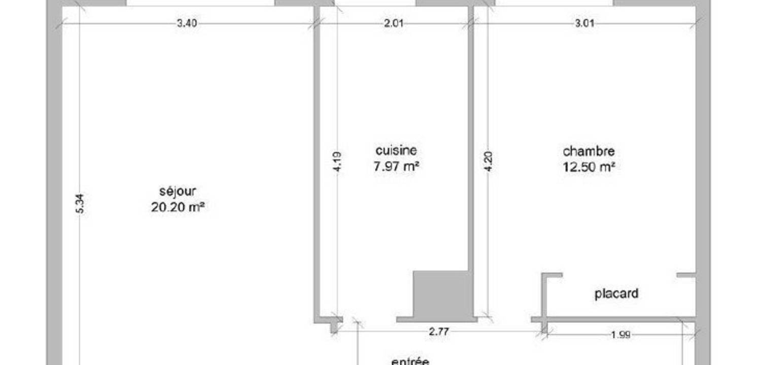
Situé Bas Fabron à proximité immédiate de la faculté de Lettres et du centre-ville, cet appartement 2 pièces de 50 m² est prolongé d'une terrasse de 9m²
Installé au 3e étage d'une belle résidence avec piscine très bien entretenue. Appartement très lumineux, toutes les pièces accèdent à la terrasse et en excellent état intérieur, actuellement loué ce bien est vendu occupé avec un bail en cours jusqu'au 15 juin 2028, loyer 920 €/mois charges comprises. La résidence propose des prestations de haut standing : ascenseur, gardien, et piscine. À proximité immédiate se trouvent bus, tram, hôpital, université et la mer, ce qui place le bien au cœur d'un environnement résidentiel très bien desservi. Pour découvrir cet appartement et apprécier sa luminosité, la terrasse et la qualité des prestations, contactez-nous pour organiser une visite.
Read more
Reduce text
| Rooms | 2 | Floor | 3 |
| Heating | collective | Surface (m2) | 50 |
| Heating type | gas | Bedrooms | 1 |
| Elevator | Yes | ||
| Fees | €12,500 (at the charge of the seller) | ||
Energy performance diagnostic
174
Greenhouse gas emission index
37
Estimated amount of annual energy expenditure for standard use: between $712.00 and $964.00 (average energy prices indexed on January 1 2023)
